Full Services
The aim of our studio is to provide a complex service for the needs of filming in a newly built building, which we have dreamed up and created specifically for this purpose.


All services in one place, from one source! We are waiting for you with camera, lamp, grip equipment and scenery construction services. Thus, in the case of a studio shoot, there is no transport cost and in the end less overtime is incurred!
Thanks to our 0-24 warehouses operation, we can serve the extra needs that arise quickly and flexibly during the day.
Our set building team can also be on constant duty!

Our Studio
Base setup
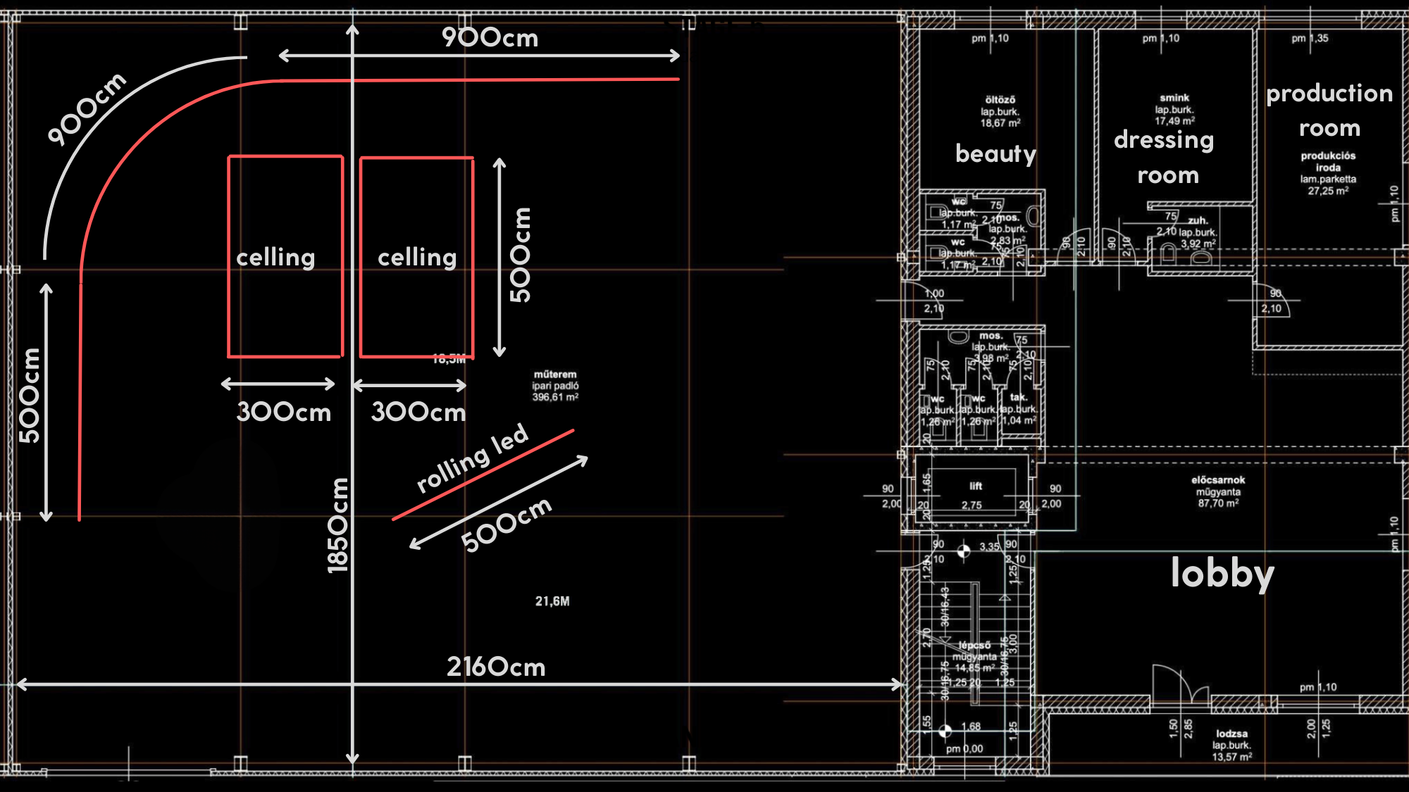
24m × 5.5m LED volume, 90° corner, 5.5m tall.
Expandable up to 42m × 5.5m
(C/U/Bow).
Features
LED ceiling modules, rolling LED, Absen NT XR 2.6, NovaStar CX, Stype RedSpy, 44
OptiTrack cameras, Unreal, Pixera, Notch.
"Located in Kraft Studio 2, our VP stage is ready for
production with everything on site — LED volume,
ceiling panels, dressing rooms, production office, lobby."
Total stage floor
21.6m × 18.5m, industrial flooring
Facilities
Beauty room (18 m2)
Dressing room (17 m2)
Production office (27 m2)
Lobby (87 m2)"
Studio details

© realis — 2025 — All Rights Reserved
Company ¬
QMB LED Kft.
Fő utca 64.
Felsőszölnök, 9985
Studio ¬
Öv u. 9.
Budapest, 1141
Office ¬
Öv u. 7.
Budapest, 1141